Контактор КМИ-10911 9А 220В/АС3 1НЗ IEK
«Оплата частями»Уважаемые покупатели! Наличие продукции и цену на момент заказа уточняйте у менеджера
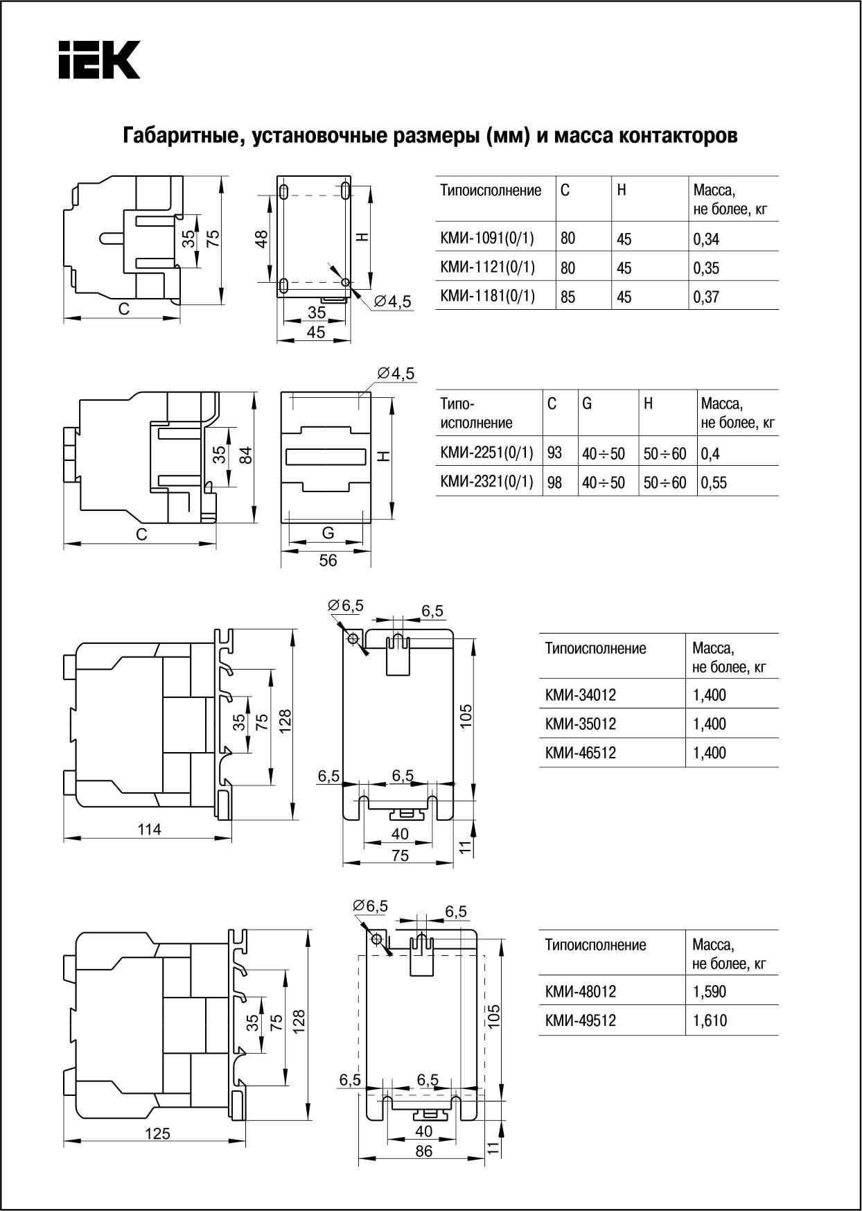
Малогабаритные контакторы переменного тока общепромышленного применения КМИ на ток нагрузки от 9 до 95 А предназначены для пуска, остановки и реверсирования асинхронных электродвигателей с короткозамкнутым ротором на напряжение до 660 В (категория применения АС-3), а также для дистанционного управления цепями освещения, нагревательными цепями и различными малоиндуктивными нагрузками (категория применения АС-1). Все исполнения на ток нагрузки до 40 А имеют одну группу замыкающих или размыкающих дополнительных контактов. Исполнения на ток нагрузки свыше 40 А - две группы (замыкающую и размыкающую).
Область применения малогабаритных контакторов серии КМИ - управление вентиляторами, насосами, тепловыми завесами, печами, кран-балками, станками, освещением, в системах автоматического ввода резерва (АВР).
По своим конструктивным и техническим характеристикам контакторы малогабаритные серии КМИ соответствуют требованиям международных и российских стандартов ГОСТ Р 50030.4.1-2002 (МЭК 60947-4-1-2000).
Контакторы малогабаритные серии КМИ прошли сертификационные испытания и на их серийный выпуск получен сертификат соответствия РОСС CN.ME86.B00144.Расширенный ассортимент предложения малогабаритных контакторов серии КМИ по сравнению с аналогами отечественных производителей на российском рынке.
Большой Ассортимент дополнительных устройств, которые всегда имеются в наличии на складе (приставки контактные ПКИ, приставки выдержки времени ПВИ, реле электротепловое РТИ).
Возможность установки на 35 мм DIN-рейку (другие отечественные производители предлагают подобное крепление только под заказ).
Предусмотрена возможность получения реверсивного варианта с использованием механизмов блокировки.
Характеристики
|
Производитель
|
IEK |
|
Номин рабочий ток Ie, А
|
9 |
|
Тип изделия
|
Контактор |
|
Серия
|
КМИ |
|
Тип монтажа
|
При помощи винтов, на DIN-рейку |
|
Степень защиты (IP)
|
20 |
|
Условный номин ток короткого замыкания
|
1 кА |
|
Тип подключения
|
Винтовое соединение |
|
Номин напряжение питания цепи управ Us AC, В
|
230 |
|
Сила тока
|
9 А |
|
Номин раб напряжение переменного тока Ue:
|
230; 400; 660 В |
|
Номин напряжение изоляции Ui, В
|
660 |
|
Климатическое исполнение и категория размещения
|
УХЛ4 |
|
Номин импульсное напряжение
|
6 кВ |
|
Максимальная кратковременная нагрузка
|
162 А |
|
Условный тепловой ток
|
25 А |
|
Мощность рассеивания
|
0.2 Вт/полюс |
|
Защита от сверхтоков - предохр gG
|
10 А |
|
Количество дополнительных контактов
|
+1р |
|
Время срабатывания(при размыкании)
|
4÷19 мс |
|
Время срабатывания(при замыкании)
|
12÷22 мс |
|
Диапазон рабочих температур
|
-25 +50 °C |
|
Размер
|
Высота: 74 мм, Ширина: 45 мм, Глубина: 80 мм |
Документы
Задать вопрос
Наличие
Наша компания работает с юридическими лицами на основе договора и все расчеты производятся безналичным способом.
Безналичный расчет:
- (наша компания является плательщиком НДС на общих основаниях).
- при самовывозе в пункте выдачи товара;
- или согласно расходной накладной с курьером.
Покупка производится наличными на месте или посредством электронных платежных систем.
Онлайн оплата Mastercard/Visa.
Вы можете забрать товар в нашем розничном магазине в городе Днепр, по адресу ул.Шинная 26 или со склада по адресу пр-т. Труда 9, и оплатить за товар наличными!
Условия Доставки:
Самовывоз
В пунктах отгрузки, по адресам:
Днепр, пр.Труда, 9
Режим работы: Пн.-Пт. 8.30-18.00 Сб.-Вс. выходной
Телефон: (073) 320-31-11
Днепр, ул. Шинная, 26
Режим работы: Пн.-Пт. 8.30-18.00 Сб. 09.00-16.00 Вс. 09.00-16.00
Телефон: (073) 320-31-11
Доставка перевозчиком
Любой удобный способ доставки товара по Украине, является неотъемлемой частью сервиса интернет магазина VOLTA. Для региональных клиентов у нас есть возможность отправить груз в указанный город в пределах Украины.
Вне зависимости от объема заказа груз может быть отправлен компанией-перевозчиком «Новая Почта».
Отправка товара происходит после 100% предоплаты.
Курьерская доставка по Днепру*
Наша компания предлагает вам бесплатную доставку по Днепру. Доставка осуществляется в течении двух дней с момента оплаты заказа. Для оформления доставки свяжитесь с вашим менеджером. Заказы на сумму менее 3000 грн. вы можете забрать из наших пунктов отгрузки.
*Действует при сумме заказа более 3000 грн

Переводчик